過去提案プラン6【2階建て26.79坪 GX志向型住宅対応】

みなさんこんにちは!
設計の香西です。
明徳ホームは香川県で新築の注文住宅の販売・施工をしている会社です!
いつもブログを見て下さりありがとうございます。

今回も過去に提案させていただいた間取りをご紹介します。
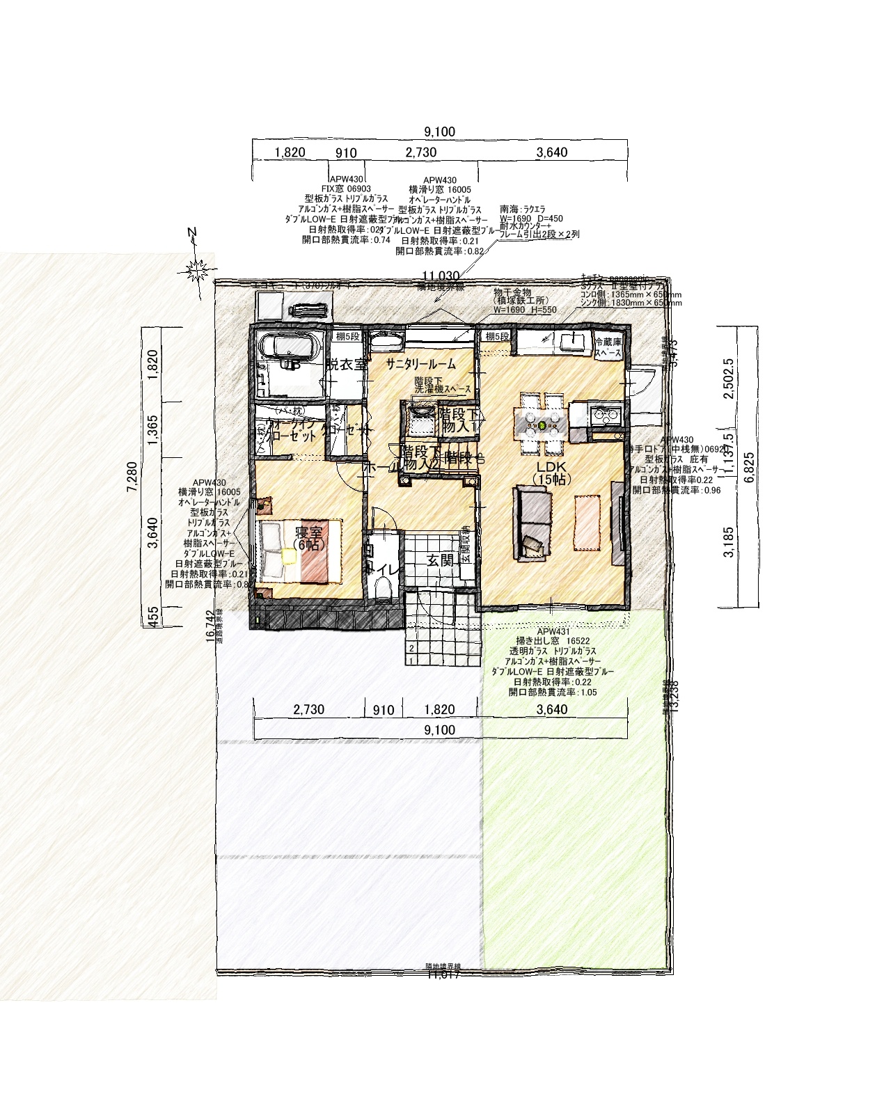
南玄関、2階建ての3LDK、延床面積88.59㎡(26.79坪)の間取りです。
コンパクトながらも暮らしに必要なものをまとめシンプルな間取りにしました。
UA値は0.46W/㎡・K以下でGX志向型住宅に対応しております。
是非、家造りの参考にしてみて下さい。