提案プラン:小屋裏収納のある和モダン住宅

こんにちは!設計の前田です。
明徳ホームは香川県で注文住宅・分譲住宅の販売をしている会社です。

過去に提案させていただいたプランをご紹介します。
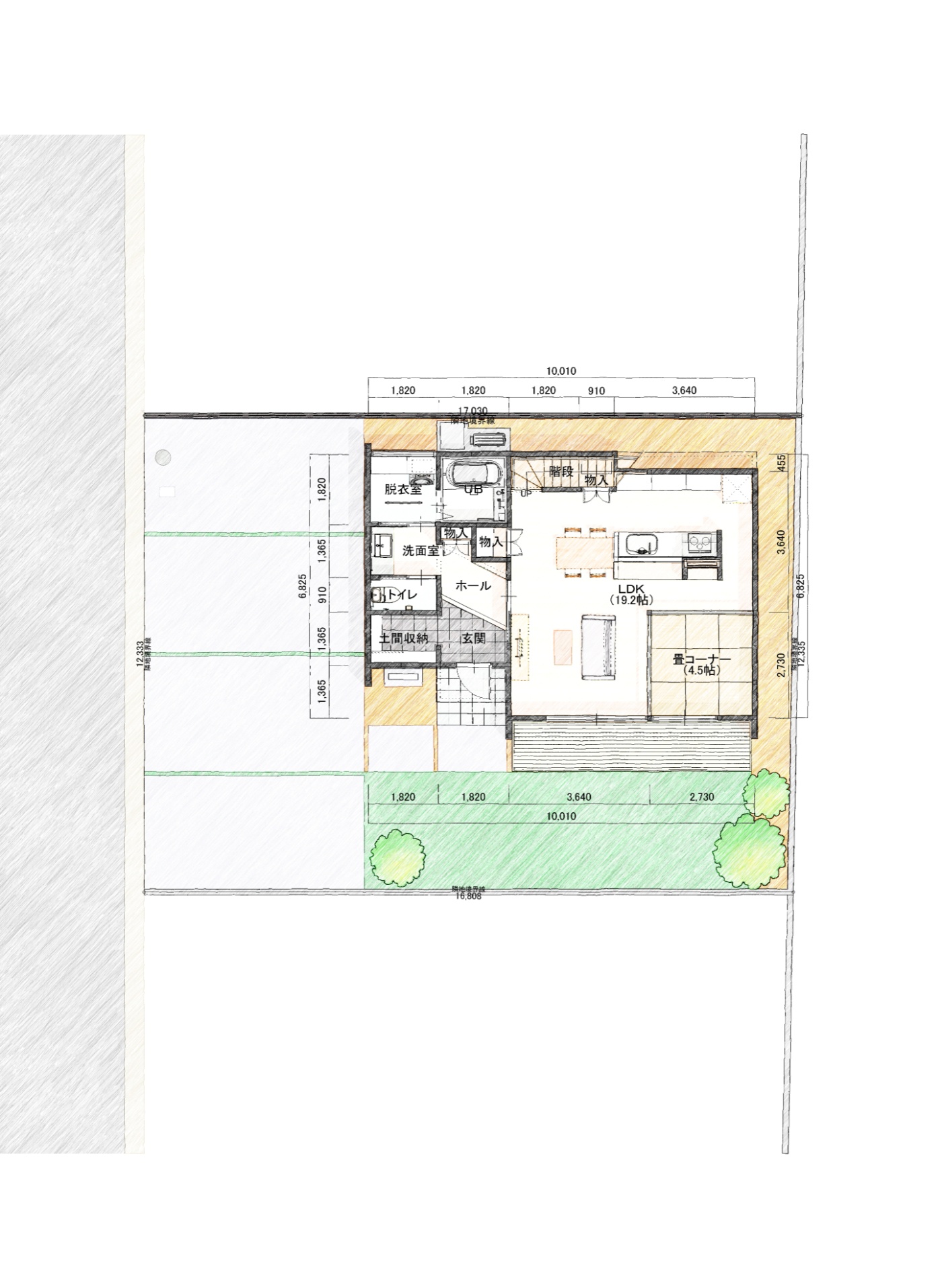
延べ面積108.89㎡、32.93坪の南入り玄関の住宅プランです。
LDKをL型に配置し、L型を埋めるように畳コーナーを配置することで広々としたLDK空間になっています。
トイレ、洗面、脱衣室を一直線に配置し、無駄な廊下が無いような部屋配置となっています。
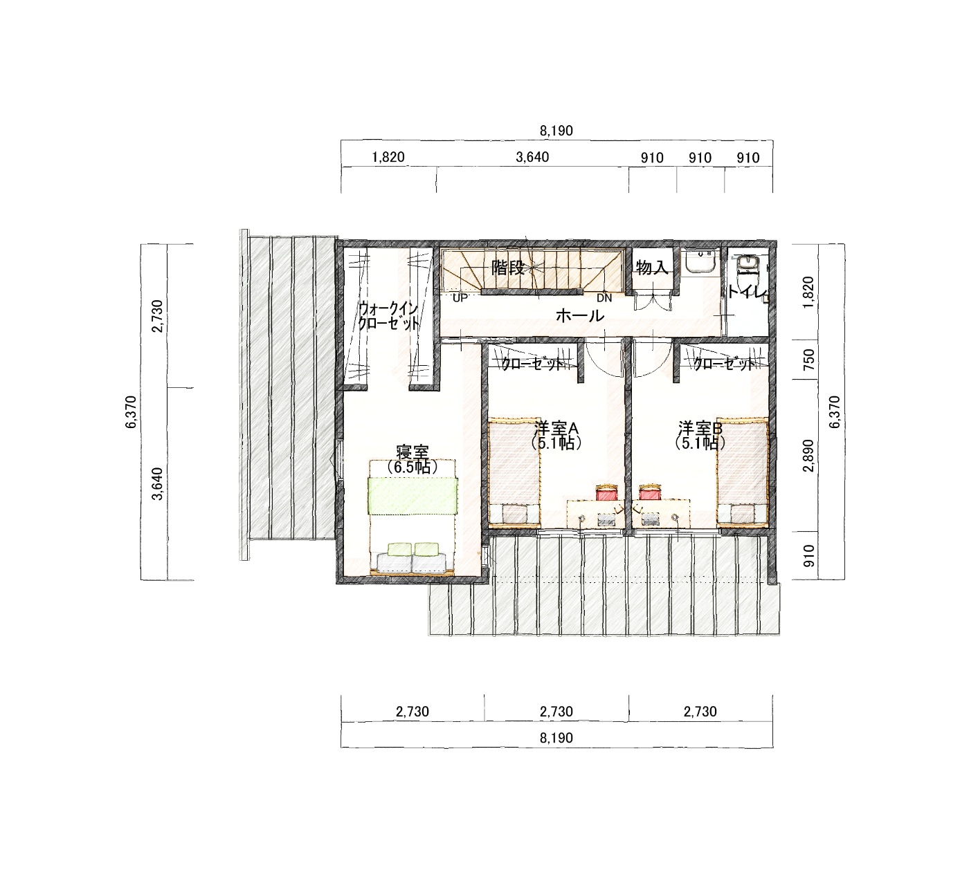
2階からさらに階段を上がると小屋裏収納もあります!

図面・プレゼン作成いたします!
お気軽にお問い合わせください!!